Arrenda-se T3 mobilado com Terraço e Box

1 100€ / Mês

  • 4
  • 3
  • 2
  • Útil: 120m2
  • Bruta: 170m2
  • C.E.: C
  • Ano: 2008
  • Orientação Solar: Nascente, Poente
  • Ref: 1533-MCPN60276

Localização

Lisboa, Oeiras, Carnaxide e Queijas, Portela (Carnaxide)

Descrição

Arrenda-se T3 completamente mobilado com terraço e Box em Portela de Carnaxide.
Apartamento de 2008 em zona sossegada e nova e possui ar-condicionado, box para 1 carro, elevador e terraço com 50m2. Muito luminoso (tem 14 janelas), com orientação solar nascente-Poente.
A arrecadação não será incluída no aluguer.
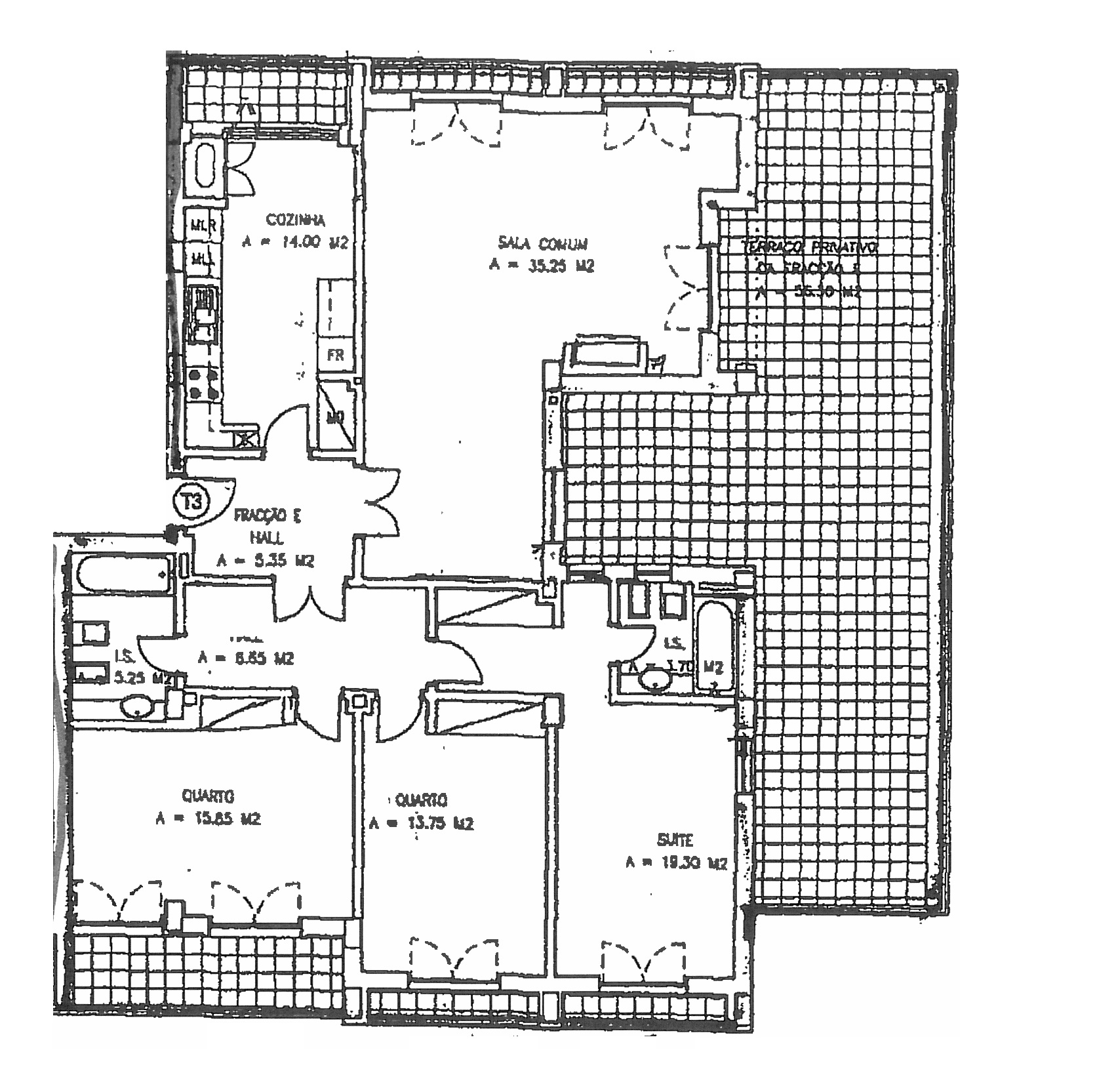
Áreas:
Sala - 35m2 // Cozinha - 14m2 // Suite - 19m2 // Quarto1 - 16m2 // Quarto2 - 14m2 // Terraço - 50m2 // Hall's - 11m2 // Wc's - 9m2 // Box - 15m2

Atributos

  • Aquecimento Central
  • Janelas vidro duplo
  • Mobilado
  • Terraço
  • Ar condicionado
  • Cozinha Equipada
  • Elevador
  • Varanda
  • Garagem (Box)
  • Estores eléctricos
  • Churrasqueira
  • Porta de Segurança

Divisões

Plantas

Nome do piso: Piso 0

Divisão Área Nota
Sala 35.00m2
Cozinha 14.00m2
Suite 19.00m2
WC 4.00m2
Quarto 16.00m2
Quarto 14.00m2
WC 5.00m2
Terraço 50.00m2
Hall de Entrada 5.00m2
Hall de Quarto 6.00m2
Box 15.00m2